Quadrilocale in vendita

Carugate, Via Cesare Battisti
€ 524.500
4 locali 4 locali
157 Mq 157 Mq
2 bagni 2 bagni

Quadrilocale in vendita

Carugate, Via Cesare Battisti

Descrizione annuncio

In una delle zone più richieste di Carugate, nelle immediate vicinanze del polo scolastico, del polo sportivo e dei principali servizi del paese, nasce la RESIDENZA LEVANTE, caratterizzata dallo stile architettonico MODERNO e ELEGANTE dove l’alta qualità costruttiva garantirà il miglior modo di vivere e abitare una casa.

Tutti gli appartamenti in classe energetica A4 dispongono di impianti ad alto efficientamento energetico e un alto livello di coibentazione che garantiscono un isolamento termico e acustico eccezionale.

Il pensiero costruttivo che definisce la RESIDENZA LEVANTE deriva dalla ricerca tecnologica, personalizzazione totale ed estrema cura del dettaglio con finiture di pregio e un progetto di una mini-palazzina di sole 10 unità abitative, che valorizza sia gli spazi interni funzionali sia le pertinenze esterne, quali TERRAZZI e GIARDINI PRIVATI per garantire ambienti aggiuntivi da vivere nei mesi più caldi con la giusta privacy e tranquillità.

La qualità costruttiva certificata in CLASSE A4, garantisce l’alto confort abitativo e l’abbattimento dei costi di gestione.

Alcune caratteristiche costruttive:

- RISCALDAMENTO E RAFFRESCAMENTO A PAVIMENTO CON GESTIONE DELLA TEMPERATURA IN OGNI AMBIENTE;

- VENTILAZIONE MECCANICA CONTROLLATA;

- POMPA DI CALORE AD ALTA EFFICIENZA ENERGETICA COADIUVATA DAI PANNELLI FOTOVOLTAICI PER UN RISPARMIO SUI CONSUMI DI ENERGIA ELETTRICA;

- TAPPARELLE ELETTRICHE IN ALLUMINIO COIBENTATO E ANTIEFFRAZIONE;

- ZANZARIERE;

- FINITURE INTERNE DI ALTO LIVELLO.

TIPOLOGIA PROPOSTA:

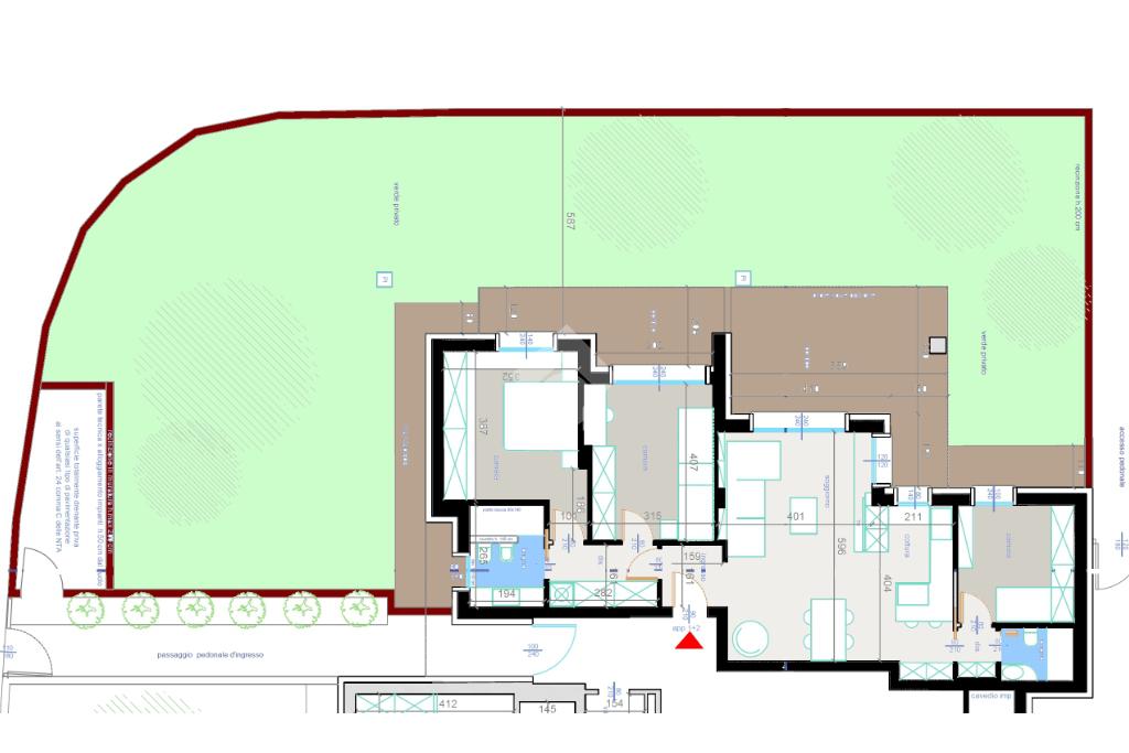
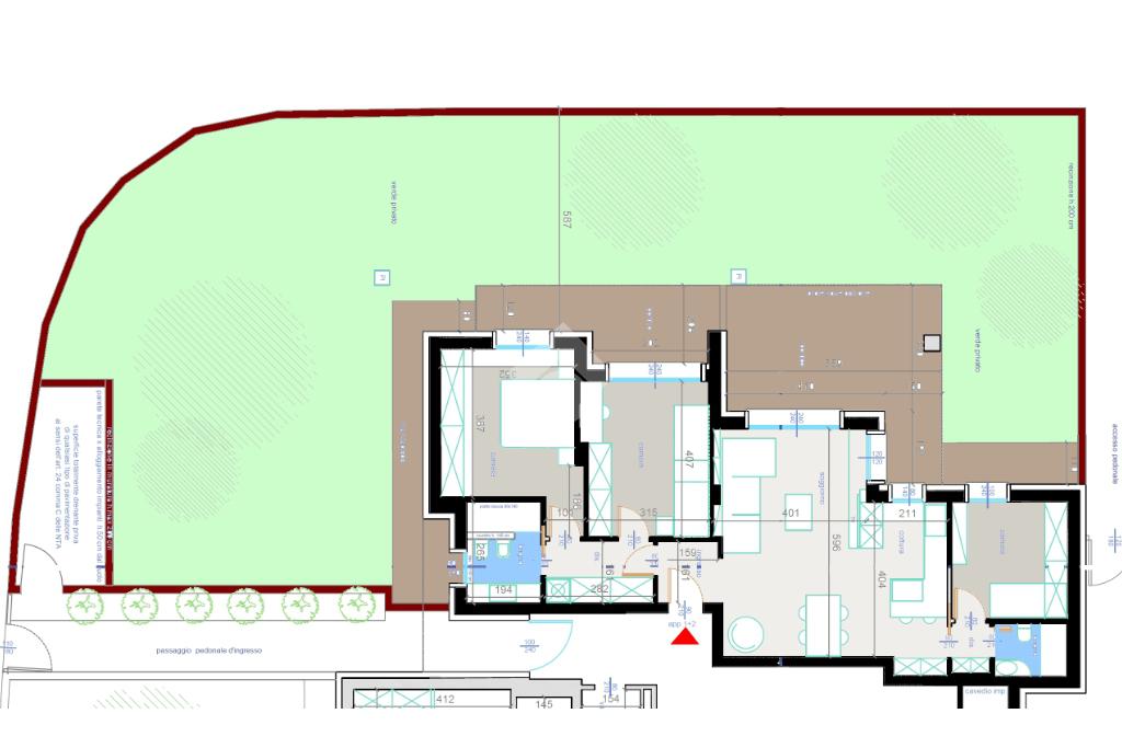
Appartamento al piano terra di quattro locali con ampio GIARDINO PRIVATO di circa 200 mq con PORTICO di oltre 30 mq composto da zona living luminosa, camera matrimoniale, camera doppia e la terza camera, disimpegni con spazi funzionali da poter arredare e i doppi servizi.

Possibilità di ampi box doppi in larghezza o singoli e cantine.

PERSONALIZZAZIONI INTERNE A SCELTA DEL CLIENTE con la consulenza di architetti e arredatori.

AGEVOLAZIONE SISMABONUS ACQUISTI in 10 anni tramite detrazione fiscale.

Mostra tutto

Nelle vicinanze

Trasporto pubblico Trasporto pubblico
Via Asiago
Via Asiago
70 m
Trasporto pubblico
160 m
Ricariche auto elettriche Ricariche auto elettriche
EnelX EVA+ Q8 Carugate
1,4 Km
Parcheggio IKEA Carugate
1,5 Km
Eneldrive Ikea Carugate
1,5 Km
Carugate | ENELX
1,6 Km
CONAD Cernusco sul Naviglio | EnelX
1,7 Km
Scuole Scuole
Scuole
380 m
Scuola Ementare
450 m
Nuovo Polo Scolastico
1,8 Km
Istituto San Nazaro
2,1 Km
Scuole elementari e medie "Alcide De Gasperi"
2,7 Km
Farmacia Farmacia
Parafarmacia Conad
1,7 Km
Farmacia Ghiozzi
2,2 Km
Farmacia
2,4 Km
Farmakal
2,5 Km
Farmacia Comunale
2,7 Km
Ospedali Ospedali
Centro Sant'Ambrogio - Fatebenefratelli
2,9 Km
Supermercati Supermercati
EuroverdeBio
1,2 Km
Carrefour
1,6 Km
Conad Superstore
1,7 Km
Penny
2,1 Km
Supermercati
2,9 Km
Negozi Negozi
Bollini
1,4 Km
Nara Camicie
1,6 Km
Celio
1,6 Km
Benetton
1,6 Km
Sisley
1,6 Km
Bar Bar
Bar
360 m
Il Furca
2,2 Km
Bar Pasticceria Regina
2,2 Km
Palandry café
2,4 Km
Bar Gelateria Al Settimo Cielo
2,5 Km
Ristoranti Ristoranti
Osteria
560 m
Peppino
1,2 Km
a me mi
1,2 Km
Ristoranti
1,4 Km
Acqua e Farina
2,1 Km
Mostra tutto

Caratteristiche

Rif.:
61150530
Piano:
Terra con giardino di 3 con ascensore
Totale piani:
3
Terrazzi:
1
Camere da letto:
3
Arredamento:
Assente
Mostra tutto
Prezzo Prezzo
€ 524.500
Rata mutuo Rata mutuo
€ 2.492 / mese
Proponi il tuo prezzoProponi il tuo prezzo

Classe Energetica

A4
A4
A4
A4
A4
A4
A4
A4
A4
Anno di costruzione:
2026
Riscaldamento:
Centralizzato
Tipo impianto:
A pavimento
Tipo alimentazione:
Altro

Ti interessa visionare l'immobile?

Fissa un appuntamento  Fissa un appuntamento

Richiedi informazioni

Clicca su Leggi per aprire l'informativa
* Questi campi sono obbligatori

Calcola il tuo mutuo

Semplice e senza impegno
Anticipo

( % )
Mutuo

( % )

pochi semplici passi

inserisci i tuoi dati
Questionario completato
Grazie per aver richiesto un appuntamento senza impegno con un nostro Consulente del Credito e Assicurativo.

Hai inserito correttamente tutti i dati necessari e a breve riceverai una e-mail con un link da convalidare per inviare i tuoi dati.
Affiliato
Mediaproget Sas
Via C. Battisti , 91 20061 Carugate (MI)

Il nostro staff


  • Sabino Piccinni
    Affiliato

  • Luca Bellino
    Collaboratore

  • Giorgio Vitali
    Collaboratore
Via C. Battisti , 91 20061 Carugate (MI)
Zona: Carugate
Mostra su mappa
Orari: da Lunedì a venerdì : 9.00 - 12.3014.30-20.30 -Sabato: 9.00 - 12.30 14.30 - 18.00
Affiliato
Mediaproget Sas
Via C. Battisti , 91 20061 Carugate (MI)

2026 Tecnocasa Franchising S.p.A. - P. IVA 08365160152 - Via Monte Bianco 60/A 20089 Rozzano (MI). Ogni agenzia ha un proprio titolare ed è autonoma. Privacy policy | Policy utilizzo | Cookie policy